
Herzlich willkommen in Koblenz,
herzlich willkommen in Ihrer neuen Wertschöpfungszentrale!
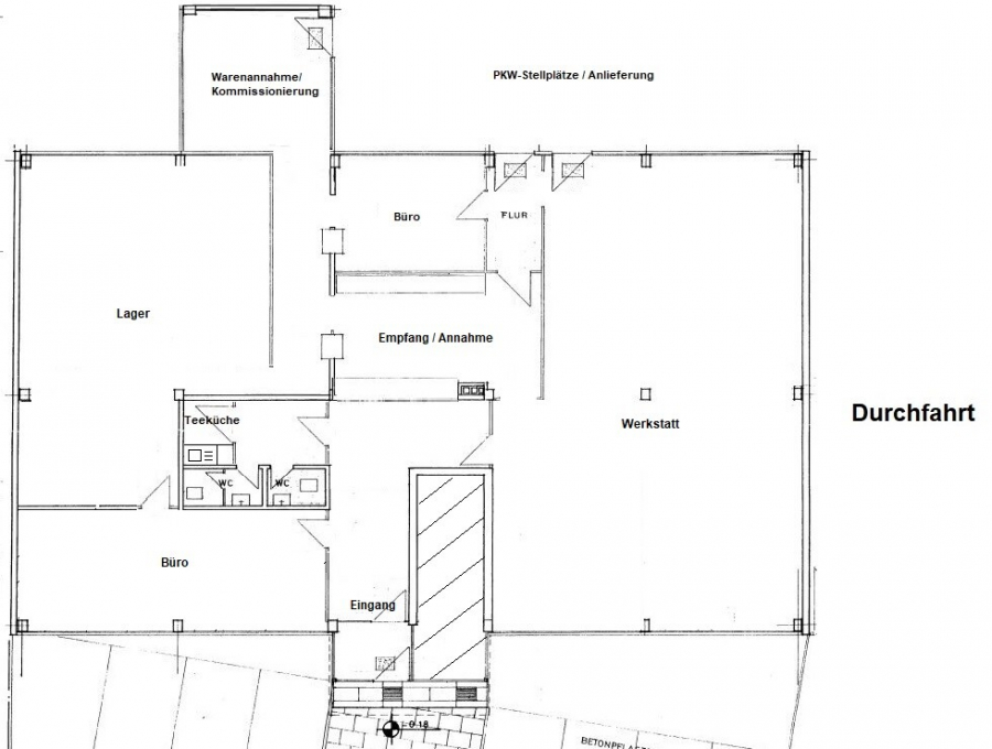
Mit dieser gepflegten Gewerbeimmobilie dürfen wir Ihnen Ihre neue Geschäftsadresse in Koblenz präsentieren. In Vergangenheit wurde an dieser über viele Jahrzehnte ein erfolgreicher Elektrofachhandel betrieben. Mit einer eigenen Werkstatt, einem großen Teilelager sowie Büro und Sozialräumen, ist die Fläche für diesen Zweck, aber auch viele andere Geschäftszweige, ideal geeignet. So wurde Sie zuletzt für viele Jahre auch für die Lagerung, Verpackung sowie den Im- / und Export von Waren genutzt.
Neben der Gewerbefläche stehen im Außenbereich ausreichend Stellplätze und bei Bedarf eine zusätzlich anmietbare Garage als Lager zur Verfügung. Beim ausgewiesenen Mietzins wird die Fläche im gegenwärtigen Zustand besenrein und geräumt übergeben. Umbauten sind durch den Vermieter möglich, können individuell abgestimmt werden und führen zu einer Neukalkulation der Miete.
Haben wir Ihr Interesse geweckt? Gerne stehen wir Ihnen bei Rückfragen sowie zur Vereinbarung eines Besichtigungstermins zur Verfügung.
Wir freuen uns auf Ihre Anfrage!
Die angebotene Gewerbefläche verfügt über nachfolgende Ausstattungsdetails:
• Toiletten Damen / Herren getrennt
• separate Teeküche
• Fenster mit ISO-Verglasung
• ca. 5 PKW-Stellplätze hinter dem Gebäude
• 4 Eingänge (1 Gebäudefront-, 3 Rückseite)
• Außenbeschattung/Rollläden vorhanden
• Innenhof auch mit Lastwagen zum Be- und Entladen befahrbar
• Werkstatt gefliest
• Kellerräume bei Bedarf verfügbar
• Einzelgarage bei Bedarf verfügbar
Die Fläche wird über Elektro-Nachtspeicheröfen beheizt.
Der Zustand der Fläche bei Übergabe erfolgt nach Vereinbarung. Die Fotos im Exposé zeigen nur einen Teil der Gewerbefläche. Die restlichen Räumlichkeiten zeigen wir Ihnen gerne bei einem persönlichen Besichtigungstermin vor Ort! Die ausgewiesene Nettokaltmiete von mtl. € 2100,- versteht sich zzgl. MwSt. und Nebenkostenvorauszahlung. Ein Energieausweis ist aktuell in Bearbeitung und liegt zur Besichtigung vor.
Das Baujahr und alle Maße sind ca.-Angaben, insbesondere die Mietfläche und die Grundstücksfläche sind vor Ort zu prüfen und sind beschreibend und keine wesentliche Eigenschaft. Wir sind für Mieter und Vermieter provisionsberechtigter Makler. Durch die Besichtigung eines von uns angebotenen Objektes oder durch Verhandlungen mit dem Vermieter, akzeptieren Sie unsere Geschäftsbedingungen. Die Zwischenverwertung bleibt ausdrücklich vorbehalten.
Die angebotene Gewerbefläche befindet sich in Koblenz im etablierten Industrie- und Gewerbegebiet Rheinhafen. Der Standort überzeugt durch seine verkehrsgünstige Anbindung: Die Bundesstraße B9 ist in unmittelbarer Nähe gelegen und ermöglicht eine schnelle Erreichbarkeit wichtiger Verkehrsadern wie der B42 sowie der Autobahnen A61, A48 und A3 – alle in wenigen Fahrminuten erreichbar.
Auch mit den öffentlichen Verkehrsmitteln ist der Standort sehr gut erschlossen. Eine Haltestelle befindet sich fußläufig in wenigen Minuten, sodass eine bequeme Anbindung für Kunden, Mitarbeiter und Besucher gewährleistet ist.
Das Industriegebiet Rheinhafen zeichnet sich zudem durch seine Nähe zum Koblenzer Stadtzentrum aus. In nur kurzer Fahrzeit erreicht man die Innenstadt mit ihren vielfältigen Einkaufs-, Gastronomie- und Dienstleistungsangeboten.
Der Wirtschaftsraum Koblenz bietet mit seiner zentralen Lage im nördlichen Rheinland-Pfalz und als Oberzentrum der Region hervorragende Rahmenbedingungen für Unternehmen verschiedenster Branchen.
Sie sehen gerade einen Platzhalterinhalt von Google Maps. Um auf den eigentlichen Inhalt zuzugreifen, klicken Sie auf die Schaltfläche unten. Bitte beachten Sie, dass dabei Daten an Drittanbieter weitergegeben werden.
Mehr Informationen56070 Koblenz, Deutschland (auf Google Maps ansehen)
Sie müssen den Inhalt von reCAPTCHA laden, um das Formular abzuschicken. Bitte beachten Sie, dass dabei Daten mit Drittanbietern ausgetauscht werden.
Mehr InformationenSie sehen gerade einen Platzhalterinhalt von Turnstile. Um auf den eigentlichen Inhalt zuzugreifen, klicken Sie auf die Schaltfläche unten. Bitte beachten Sie, dass dabei Daten an Drittanbieter weitergegeben werden.
Mehr InformationenSie sehen gerade einen Platzhalterinhalt von Facebook. Um auf den eigentlichen Inhalt zuzugreifen, klicken Sie auf die Schaltfläche unten. Bitte beachten Sie, dass dabei Daten an Drittanbieter weitergegeben werden.
Mehr Informationen